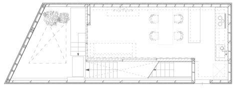
La vivienda ha sido diseñada por Tetsuo Kondo para una paraja y sus dos hijos. Se sitúa en una pequeña colina en un barrio residencial a las afueras de Yokohama, Japón, donde las viviendas permanecen muy juntas, sin embargo, a la espalda de éstas se encuentra un frondoso bosque. Aunque la zona está muy desarrollada aún se puede escuchar a los pájaros y disfrutar del aire fresco haciendo de éste un lugar atractivo para vivir. Las habitaciones están organizadas verticalmente y mediante la inserción de espacios exteriores a lo largo de toda la casa, el entorno se puede sentir en todo momento.
Los jardines se han situado para que sean accesibles desde todas las habitaciones. Las ventanas están orientadas en diferentes direcciones para que la vista del cielo y el bosque se puede disfrutar incluso desde otras habitaciones. Estos jardines o espacios intermedios, no sólo conectan el interior con los espacios exteriores, también tienen una función más allá de ser un espacio de circulación interior funcionando como espacios comunes para la familia. Aunque cada habitación es independiente, estas áreas no específicas permiten que las habitaciones se extiendan y se mezclen entre sí creando nuevos espacios con cada uso. También permite a la familia modificar la pequeña casa de muchas maneras diferentes adaptándola a sus necesidades.
Esta casa con su peculiar techo a dos aguas se funde con el contexto sobre el que se asienta manteniendo diversos tipos de relaciones con el exterior, ya sea con las construcciones adyacentes o con la naturaleza que le rodea. Los arquitectos se valen del medio ambiente para crear un estilo de vida agradable para sus habitantes.
Datos del proyecto:
Localización: Yokohama, Japón
Arquitectos: Tetsuo Kondo
Proyecto: 2007
Construcción: 2009
Superficie de la Parcela: 136 m2
Superficie Habitable: 139 m2
































